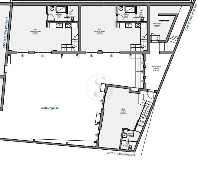
Milano Dergano – In piazza Dergano, in piano di recupero, in una corte signorile, verranno realizzati due ampi bilocali da 75mq. l’uno, posizionati al piano terra, composti da:
– ampia zona living con cucina a vista
– camera da letto soppalcata (abitabile)
– bagno
Gli appartamenti verranno realizzati con L’efficientamento energetico si riferisce agli interventi mirati a ottimizzare l’uso dell’energia, riducendo sprechi e consumi, e migliorando le performance di edifici e impianti, il tutto da la possibilità di ottenere anche “Mutuo Green” con tassi aggevolati! Un mutuo green per la prima casa è un finanziamento a condizioni vantaggiose offerto dalle banche per l’acquisto o la costruzione di immobili ad alta efficienza energetica (classe A o B). Questo tipo di mutuo può essere a tasso fisso o variabile e spesso offre tassi più bassi rispetto ai mutui tradizionali, incentivando l’acquisto di abitazioni più sostenibili.
Per maggiori informazione non esitate a contattarci
Questo sito utilizza i cookie per migliorare la tua esperienza di navigazione. Di qusti cookie, quelli categorizzati come necessari sono memorizzati nel tuo browser perché sono essenziali per il corretto funzionamento del sito web. Usiamo anche cookie di terze parti che ci aiutano ad analizzare e capire come viene utilizzato il sito web. Questi cookie verranno memorizzati nel tuo browser solo con il tuo consenso. Puoi anche rifiutare la memorizzazione di questi cookie, ma questo potrebbe influire negativamente sulla tua esperienza di navigazione.
| Cookie | Durata | Descrizione |
|---|---|---|
| _pk_id.*.* | 1 Month | Cookie di prima parte per statistiche di utilizzo che raccoglie dati anonimi e in forma aggregata per statistiche riservate agli amministratori del sito |
| _pk_ses.*.* | 1 Hour | Cookie di prima parte per statistiche di utilizzo che raccoglie dati anonimi e in forma aggregata per statistiche riservate agli amministratori del sito |
| cookielawinfo-checkbox-advertisement | 1 year | Questo cookie è impostato dal meccanismo di registrazione del consenso all'utilizzo dei cookie previsto dal GDPR. Registra il consenso dell'utente all'utilizzo dei cookie nella categoria "Pubblicità". |
| cookielawinfo-checkbox-analytics | 1 year | Questo cookie è impostato dal meccanismo di registrazione del consenso all'utilizzo dei cookie previsto dal GDPR. Registra il consenso dell'utente all'utilizzo dei cookie nella categoria "Analitici". |
| cookielawinfo-checkbox-functional | 1 year | Questo cookie è impostato dal meccanismo di registrazione del consenso all'utilizzo dei cookie previsto dal GDPR. Registra il consenso dell'utente all'utilizzo dei cookie nella categoria "Funzionali". |
| cookielawinfo-checkbox-necessary | 1 year | Questo cookie è impostato dal meccanismo di registrazione del consenso all'utilizzo dei cookie previsto dal GDPR. Registra il consenso dell'utente all'utilizzo dei cookie nella categoria "Necessari". |
| cookielawinfo-checkbox-necessary | 1 year | Questo cookie è impostato dal meccanismo di registrazione del consenso all'utilizzo dei cookie previsto dal GDPR. Registra il consenso dell'utente all'utilizzo dei cookie nella categoria "Necessari". |
| cookielawinfo-checkbox-others | 1 year | Questo cookie è impostato dal meccanismo di registrazione del consenso all'utilizzo dei cookie previsto dal GDPR. Registra il consenso dell'utente all'utilizzo dei cookie nella categoria "Altri". |
| cookielawinfo-checkbox-performance | 11 months | Questo cookie è impostato dal meccanismo di registrazione del consenso all'utilizzo dei cookie previsto dal GDPR. Registra il consenso dell'utente all'utilizzo dei cookie nella categoria "Performance". |
| elementor | never | Questo cookie è utilizzato dal tema WordPress del sito web. Consente al proprietario del sito Web di implementare o modificare il contenuto del sito Web in tempo reale. |
| tc_mtm_vars | 1 year | Utilizzato dal sistema per individuare le campagne pubblicitarie di origine. |
| tc_mtm_vars_last | 1 year | Utilizzato dal sistema per individuare l'ultima campagna pubblicitaria di origine. |
| viewed_cookie_policy | 11 months | Questo cookie è impostato dal meccanismo di registrazione del consenso all'utilizzo dei cookie previsto dal GDPR. Registra se l'utente ha acconsentito o meno all'uso dei cookie. |